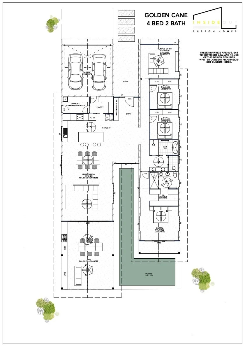
Golden Cane

🌾 Introducing the “Golden Cane” — Our interpretation of the Modern Australian Barn House, designed for the tropics.

Blending timeless rural character with contemporary design, the Gold Cane is created for those who value space, light, and effortless connection to the outdoors. Every detail has been thoughtfully considered to suit the Australian climate and way of life.

Key Features

  • Barn Style street facade, combined with eaves to the rear to provide natural shading and enhance energy efficiency in the tropical sun.

  • Large, strategically positioned windows invite cooling breezes and frame spectacular Whitsunday views.

  • Four spacious bedrooms and two bathrooms deliver comfort and functionality for modern family living.

  • Optional luxury lap pool running through the centre of the home — a striking design statement that brings water, light, and tranquility to the heart of the layout.

The Gold Cane Design celebrates open-plan living, natural materials, and a seamless indoor–outdoor flow — perfectly suited to the relaxed sophistication of the Whitsundays lifestyle.

PRICE GUIDE 1.3M

PRICING IS SUBJECT TO CHANGE AND IS USED AS A GUIDE ONLY. FINAL PRICING IS DEPENDANT ON THE SITE, ENGINEERING, SOIL TEST, WASTE WATER DESIGN, FIRE RATING, SERVICES AND EXACT MATERIALS AND FINISHES.

Previous
Previous

MINI SHOUSE

Next
Next

BANGALOW